


Atlanta, GA 30315
Bedrooms
Bathrooms
Sq Ft
Lot Size Sqft
Year Built
HOA
Type
Days on Market
Status
Bedrooms & Bathrooms
Appliances
Interior Features
Parking
Property Features
Lot Details
Construction
Community & HOA
Financial & Listing Details
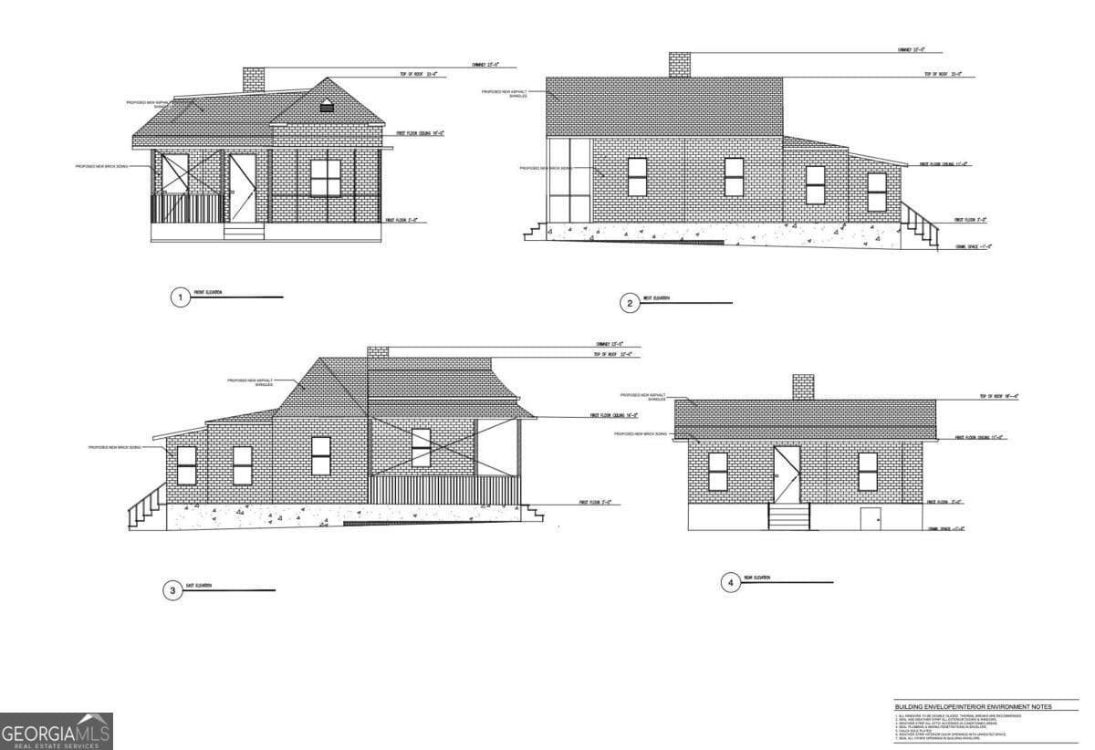
Rare opportunity to step into a renovation project with the hard work already done. This property is being sold with approved plans, completed survey, and active permits, allowing the next owner to begin construction immediately and skip months of design and approval timelines. The plans envision a beautiful transformation that enhances the character of the home while bringing it into modern living standards. For investors, builders, or visionaries looking for their next project, this property provides a clear path to create something truly special. Located in an area experiencing strong revitalization, the potential here is significant. With the planning and preparation already completed, the next owner simply needs to execute the vision and bring the project to life. Plans, survey, and permit documentation will be transferred with the sale. Property sold As-Is.
Elementary
Dunbar
Middle
King
High
MH Jackson Jr
*Source: GAMLS. Data may be incomplete. Contact local school district to confirm exact zoning.
On Market Since
March 13, 2026
Data Source
GAMLS #10711411
Listing Updated
2 days ago
Roots Checked
> 1 month ago
Listed By
N/A

© 2021 Georgia MLS. All rights reserved. Information deemed reliable but not guaranteed.