


Aurora, CO 80018
Bedrooms
Bathrooms
Sq Ft
Lot Size Sqft
Year Built
HOA
Type
Days on Market
Status
Balance
Loan Type
Years Left
Customize Your Downpayment
Adjust your downpayment to fit your budget
Your Downpayment
$59k
$250k
Assumable Loan
Balance
$290,020
Rate
3.46%
Monthly
$2,477
Estimated Monthly Payment
Principal $811
Interest $836
Tax & Ins $774
HOA $55
Save
vs. today's 6.89% rate
*Savings, rates, payments, and downpayments are estimates; specific figures may vary. Roots offers a service to help buyers find and purchase homes with assumable mortgages. Roots is not a lender and does not make lending decisions. All loan approvals and credit decisions are made independently by the lender, not by Roots.
Bedrooms & Bathrooms
Appliances
Interior Features
Interior Area
Parking
Property Features
Lot Details
Construction
Community & HOA
Financial & Listing Details
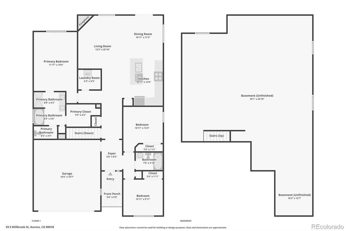
This one is even better in person! Fresh interior paint, brand new vinyl flooring, carpet and baseboards, custom painted cabinets and vanities, plus newer roof, exterior paint and water heater (over $60k in improvements over 2 years!)…all it needs is you and your things! Move-in ready with thoughtful updates and room to grow, this Adonea home with 3 beds and 2 baths is a great fit for first-time buyers, right-sizers, or anyone looking for flexibility. The main level offers a comfortable, open and easy flow between the kitchen, dining, and living spaces. Touches of color create interest and creativity; the fireplace adds warmth and cozy. The kitchen offers plenty of prep and storage space, the dining area opens directly to the patio for grilling and relaxed outdoor dinners, and the living room is where you'll be as the day winds down. The primary suite includes a spacious 5-piece bath and walk-in closet, while the two additional bedrooms at the front of the house are perfect for kids, guests, a home office, or hobbies. Main-level laundry offers convenience, and there's even room to add a utility sink and more cabinetry. If you’re thinking long-term, the full unfinished basement offers a rare opportunity to double your living space; bedrooms, a rec room, home gym, workshop – the space is there! Located within walking distance to Adonea’s Community Center, pool, playground, basketball court, and pavilion, the neighborhood is established, welcoming, and quiet, with a proactive and social HOA. With quick access to E-470, I-70, DIA, Anschutz Medical Campus, and Southlands, this location makes commuting and daily life easy. A home that offers comfort today and potential for tomorrow – I repeat, this one is even better in person!!
Elementary
Vista Peak
Middle
Vista Peak
High
Vista Peak
*Source: RECO. Data may be incomplete. Contact local school district to confirm exact zoning.
Car loans, credit cards, student loans, etc.
*Roots offers a service to help buyers find and purchase homes with assumable mortgages. Roots is not a lender and does not make lending decisions. All loan approvals and credit decisions are made independently by the lender, not by Roots.
On Market Since
April 15, 2026
Data Source
RECO #REC6369065
Listings courtesy of REColorado as distributed by MLS GRID.
Listing Updated
2 days ago
Roots Checked
4 days ago
Listed By
Megan Lopez
7207347099
Thrive Real Estate Group

Listings courtesy of REColorado as distributed by MLS GRID.
Based on information submitted to the MLS GRID as of 9:00am, 04/18/2026. All data is obtained from various sources and may not have been verified by broker or MLS GRID. Supplied Open House Information is subject to change without notice. All information should be independently reviewed and verified for accuracy. Properties may or may not be listed by the office/agent presenting the information.
Information provided is for consumers' personal, non-commercial use and may not be used for any purpose other than to identify prospective properties consumers may be interested in purchasing.